山口県 岩国市・玖珂町・周東町・柳井市を中心とした不動産情報サイト
有限会社 森口不動産
moriguchi real estate
お電話でのお問い合わせは(日曜・祝日・水曜日を除く AM9:00~PM6:00)
tel.
0827-82-6004
fax.
0827-82-6104
売地
売家
アパート/マンション
貸家
店舗・事務所
貸地
貸駐車場
売地
売家
アパート/
マンション
貸家
店舗/事務所
貸地
貸駐車場
森口不動産携帯サイト
http://www.moriguchi.biz/i/
当店指定トータルリフォーム会社
ヒライチハウス
〒742-0424
山口県岩国市周東町差川1085-31
TEL:0827-84-2494
FAX:0827-84-2464
桃園マンション (2F)
の物件情報
[
大きくする
]
管理番号:200
この物件を問い合わせる
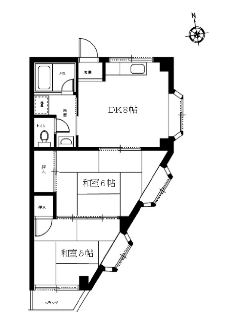
桃園マンション (2F)
[間取り]
2DK
[所在地]
岩国市玖珂町谷津下
[建物構造]
鉄骨コンクリート造瓦ベスト葺2階建
[築年月]
昭和63年4月
[用途]
共同住宅
[室面積]
47m² (14坪)
[交通]
JR岩徳線 玖珂駅 徒歩6分
[賃料]
43,000円
(駐車料・共益費込)
[敷金]
86,000円 (賃料の2ヶ月分)
[仲介料]
賃料の1ヵ月分+消費税
[入居時期]
即可
[備考]
※駐車(2台分)・共益費は賃料に含む
※2年間の借家人賠償、個人賠償付の家財保険に加入すること
※ペット不可
[設備]
○
照明器具
●
シャワー
●
トイレタオル掛け
●
つり戸棚
●
洗面タオル掛け
●
Wカーテンレール
●
洗濯機置場
●
洗面台
○
チャイム
●
バス
(ガス給湯器)
●
インターホン
○
物置
●
浴室タオル掛け
●
アミ戸
○
BSアンテナ
●
エアコン
○
ケーブルテレビ
○
駐輪場
○
コンロ
●
駐車場
(2台分)
●
上水
(市水道)
●
TVアンテナ
●
下水
(公共下水)
○
床下収納
●
換気扇
○
ゲタ箱
○
天井プロペラファン
●
水切棚
○
ベランダ
○
雨戸
●
洗濯物干場
●
トイレ
(洋水洗)
○
カップボード
有限会社 森口不動産
tel.
0827-82-6004
山口県知事免許(5)第3065号 住所 〒742-0324 山口県岩国市玖珂町798-3(駅通り)
fax.
0827-82-6104
e-mail.
moriguchi_postmail@nifty.com